\\ほったらかし見学会//「インナーガレージのある理想の家」 in 春日井市
お申し込みは下記のフォームよりお願いします!
※当日のご予約はお電話にて承ります。
[営業時間] 9:00~19:00 [定休日] 火・水曜日
特典条件を見る
1組様につきamazonギフトカード3万円を進呈します ①WEB予約と事前来場確認を頂けた方 ②来場時にアンケートをご記入頂いた方 ③1年以内に当社施工エリアにて新築を検討されている方 ④更に銀行の事前審査承認で+2万円の合計3万円分進呈します ※グループ会社への来場を含めて1回限りの進呈となります
”ほったらかし見学会”「インナーガレージのある理想の家」で家づくり始めませんか?
今回は、敷地面積約45坪・延べ床面積約35坪 2LDK、将来的3LDKにも可変可能なお家です!
玄関横まで乗り入れ可能な屋根付きガレージを備え、雨の日でも濡れずにお買い物の荷物を運び入れできるので嬉しいですね。
玄関ドアを開けると杉材の香りが広がり、リビングは熊野杉の床、珪藻土の壁、杉板の天井で自然素材に囲まれた心地よい空間を演出します。
家事ラク動線を実現した回遊設計で、快適な暮らしを実現しました。
また、「新築のお家は見たいけど営業されるのはいやだ」「自分のペースで見たい!」という方にぴったりの〈〈ほったらかし見学会〉〉です。
ご自身のペースでご自由に見学いただけるので、リラックスしてお家の魅力を体感できます。
これから家づくりを始めようとお考えの方にぴったりの見学会!
お申し込みは下記のフォームよりお願いします!
※当日のご予約はお電話にて承ります。
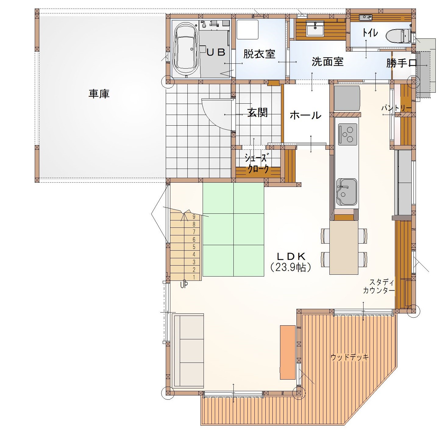
間取り
間取り:2LDK(将来、3LDKに変更できる仕様)
土地面積:約45坪
建物面積:約35坪
<1階:約20坪 2階:約15坪>
家族構成:ご夫婦、子ども2人
駐車場:インナーガレージ 2台
1階間取り
2階間取り
・インナーガレージ
雨の日でも安心の駐車スペース。買い物の荷物運びが楽になります。
・自然素材の温もり
杉材の床、珪藻土の壁、杉板の天井が作り出す居心地の良い空間。
・家事ラク動線
キッチンからリビング、ダイニングへのスムーズな動線。回遊設計で毎日の家事が楽に。
・造作洗面台
タイルや鏡の大きさなど、デザイン性と機能性にこだわったおしゃれな空間になりました。
帰宅時の手洗い動線も考慮し、脱衣室とは別に配置されています。
・スタディスペース
子どもの宿題やママの家事スペースとして利用可能です。
・可変間取りの子供部屋
ライフスタイルやお子様の成長に合わせて間取り変更が可能な設計。いつまでも居心地の良い住環境が実現します。
こんな方にぜひおすすめです!
・これから家づくりを始めようとお考えの方
・経年変化が楽しめる自然素材の家に興味がある方
・家事動線や収納が充実し、毎日の家事を効率的にしたい方
・将来の家族構成の変化に対応できる間取りを探している方
ご自分のペースで自由に見学いただける〈〈ほったらかし見学会〉〉で、この魅力的な住まいを実際に体感していただき、家づくりの参考にしてください!お待ちしております!
ご希望の方には、無料で資金計画表の作成や土地取得のご提案も行います!
来場までの流れ
①来場のご予約、まずは下記のフォームよりご予約をお願いします。
②ご希望日時をお選び下さい。
③申し込み内容を確認後、担当者よりご連絡差し上げます。
④日程が確定しましたら、当日5分前までにご来場ください。
⑤事前アンケートにご協力ください。
⑥お客様にはスタッフはこちらからお声がけしません。ゆっくりご見学ください。
⑦気になることや質問があればお声がけください。念のためスタッフが付き添います。
⑧建物についての説明をご希望の場合はお声掛けください。
※休業日にご予約いただいた場合は、休業明けに順次対応いたします。予めご了承ください。
